CREATOR jest Niepubliczną Placówką Oświatową, która prowadzi profesjonalne kursy stacjonarne, w formie wykładów – prezentacji multimedialnych i interaktywnych zajęć warsztatowych w postaci ćwiczeń praktycznych. Biorąc udział w zajęciach kursowych każdy ma szansę na zdobycie wiedzy od podstaw i w pełni przygotować się do zawodu stylisty, dekoratora czy też projektanta wnętrz.
To co wyróżnia kurs:
– 10 lat doświadczenia w branży wnętrzarskiej
– certyfikat ukończenia kursu, w formie świadectwa MEN
– profesjonalne kursy w formie wykładów, warsztatów, prezentacji multimedialnych i zajęć interaktywnych
– wykładowcy CREATORA to wykwalifikowana kadra, pracownicy naukowi, a przede wszystkim praktycy
– pierwsi i jedyni w Polsce opracowali autorska formułę organizowania konkursów na najlepszy projekt zaliczeniowy pod patronatem medialnym
www.creator.net.pl
Zgłoszenia: Małgorzata Stawińska, biuro@creator.net.pl, tel. 504 222 373
Dodatkowe informacje: Olga Kisiel-Konopka, olga@olgakk.pl, tel. 882 444 811
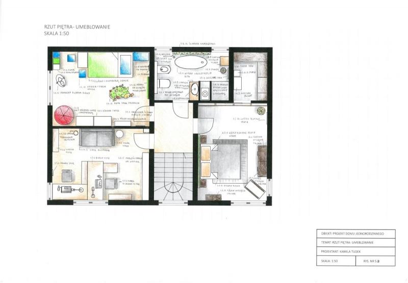
Zakończyły się właśnie dwie edycje kursu: Warszawa i Wrocław. Znamy też kolejne laureatki CREATORA są nimi:
Warszawa: Kamila Tudek
Wrocław: Magdalena Lorek-Biela
Zapraszamy również do udziału w następnej edycji CREATOR WNĘTRZA – kursie stylizacji. Zajęcia odbędę się w topowych przestrzeniach wnętrzarskich Warszawy w terminie: 21,22 maja,4,5,18,19 czerwca br. Czekamy na zgłoszenia!





























