Laureatkami konkursu na najlepszy projekt przestrzeni mieszkalnej CREATOR zostały Beata Sopel, Aleksandra Witek, Katarzyna Prenkiewicz i Agata Szreniawa. W konkursie mógł wziąć udział każdy uczestnik kursu projektowania wnętrz, organizowanego przez firmę Creator. Zwycięzcy promowani są przez patronów medialnych. To świetna okazja do pokazania się na rynku i rozpoczęcia kariery.
Szkolenia Creator odbywają się w Warszawie, Krakowie i Wrocławiu, a w ofercie znaleźć można również kurs obsługi programu Archicad. Zajęcia prowadzą architekci, projektanci, wykładowcy akademiccy i specjaliści w branży. Uczestniczy otrzymują świadectwo MEN i certyfikat Graphisoft.
– Edukujemy i szkolimy przyszłych projektantów i designerów wnętrz od kilkunastu lat, w kilku miastach w Polsce. Dokładnie znamy rynek i dążymy do tego, by nasi absolwenci odpowiadali na jego potrzeby. Uczestnicy otrzymują od nas kompleksową wiedzę dotyczącą całego procesu projektowego. Podczas zajęć zajmują się aranżacjami przestrzeni o określonych funkcjach. Poznają także niezbędne do pracy narzędzia jak np. Archicad – jeden z najlepszych programów komputerowych do projektowania wnętrz. Dzięki temu, po zakończeniu kursu są kompleksowo przygotowani do pracy w zawodach projektanta, dekoratora i stylisty. Ofertę wzbogacają szkolenia oraz praktyczne zajęcia fakultatywne, organizowane specjalnie w showroomach wnętrzarskich i pracowniach projektowych – wyjaśnia Małgorzata Stawińska, pomysłodawczyni i właścicielka firmy Creator.
Laureatką krakowskiej edycji konkursu została Katarzyna Prenkiewicz. Zawodowo zajmuje się tańcem – prowadzi własną szkołę i tworzy choreografie. Projektowanie wnętrz zawsze było jej marzeniem. Jak przyznaje-czekała na moment, by móc zająć się nim profesjonalnie. Jej kluczem do sukcesu na obu polach jest uważne wsłuchanie się w potrzeby klienta i wychodzenie poza schematy.
Najlepszy projekt we Wrocławiu przedstawiła Agata Szreniawa, dla której konkurs był prezentem na 30-ste urodziny. Jest laureatką Technologii Chemicznej, ale w wolnych chwilach zajmuje się renowacją mebli. Zawsze interesowała się architekturą wnętrz i marzy o pójściu w tym kierunku. Do stworzenia zwycięskiego projektu zainspirowały ją filmy Wesa Andersona.
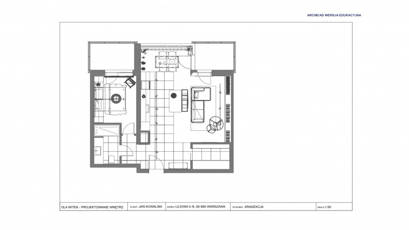
Aleksandra Witek pasję do projektowania wnętrz łączy z zamiłowaniem do fotografii. Sama siebie nazywa estetką – zwraca ogromną uwagę na detale i spójność projektów. W konkursowym projekcie połączyła nowoczesny minimalizm i domową atmosferę. Przyznaje, że ta przygoda była spełnieniem jej marzeń.
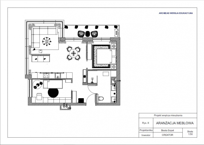
Ostatni wyróżniony projekt należy do Beaty Sopel. Pasja do pięknych i funkcjonalnie urządzonych przestrzeni drzemała w niej od lat, aż w końcu kolekcja pomysłów musiała znaleźć ujście w praktyce. Inspiracje czerpie z podróży, a jej motorem napędowym jest trójka dzieci. Teraz projektowanie traktuje jako swój sposób na życie.
Nowe edycje kursu rozpoczną się we wrześniu. Więcej szczegółów na stronie: http://www.creator.net.pl/














































